Características
Descripción
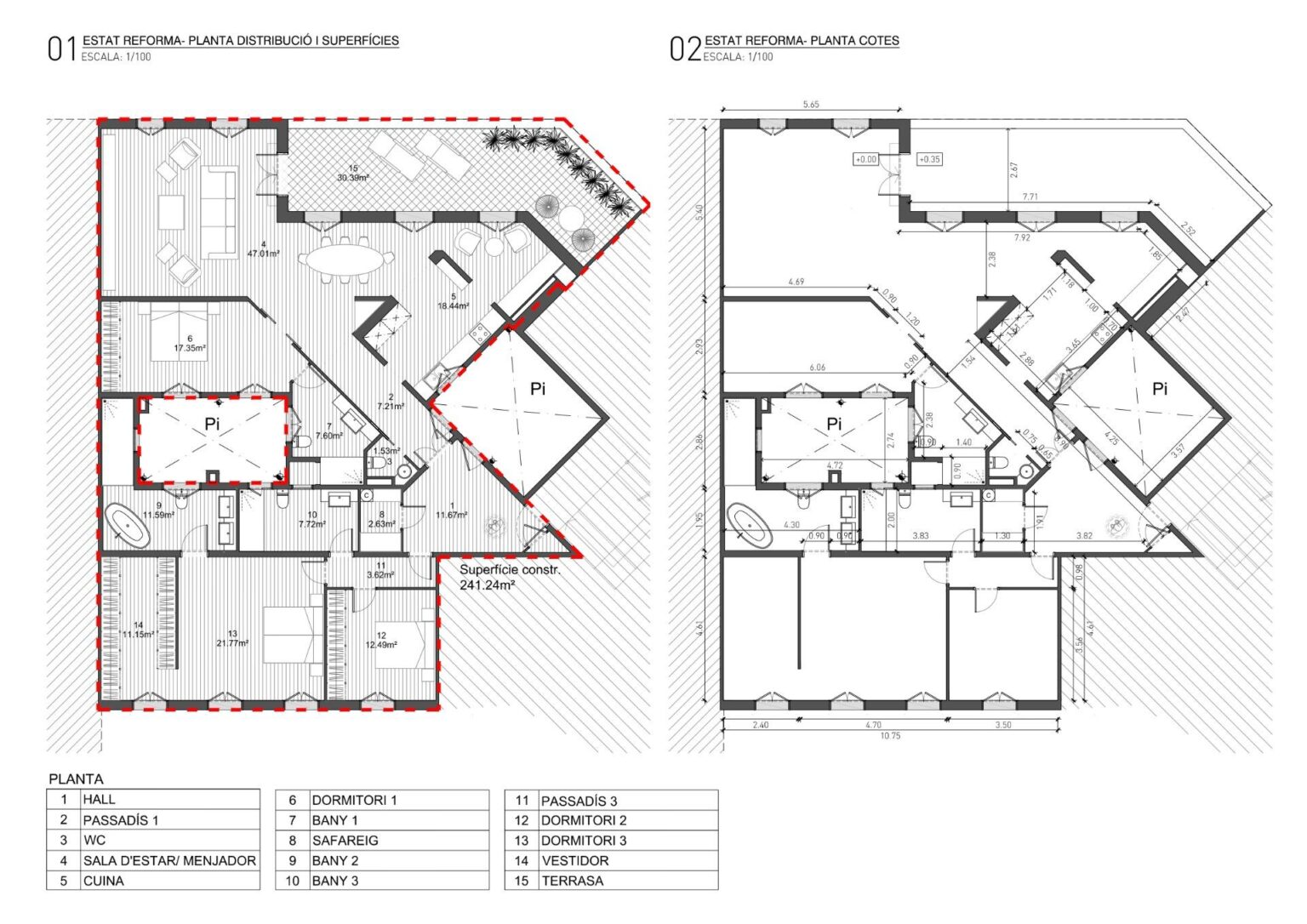
Coldwell Banker Anteris presenta este ático esquinero situado en la calle peatonal Girona, en el corazón del Eixample Dret de Barcelona, esquina con Diputació.
Ubicado en la séptima planta de una finca regia de principios del siglo XX, con ascensor y en excelente estado de conservación, la vivienda ha sido recientemente reformada con materiales de alta calidad y es completamente exterior.
La propiedad ofrece más de 210 m² construidos y una agradable terraza a nivel de la zona de día, de uno de 30 m², ideal para disfrutar del aire libre en un entorno tranquilo y céntrico.
La zona de día se compone de un amplio salón-comedor con grandes ventanales y acceso directo a la terraza, así como una cocina integrada de diseño italiano, equipada con electrodomésticos de alta gama y espacio adicional de almacenaje.
La zona de noche dispone de tres dormitorios dobles. El dormitorio principal cuenta con vestidor y baño en suite con bañera y ducha. El segundo dormitorio también dispone de baño en suite, y el tercero cuenta con baño completo propio. La vivienda se completa con un aseo de cortesía, zona de lavandería independiente y espacios de almacenamiento.
El ático está equipado con climatización por conductos, con opción de calefacción a gas. Una propiedad ubicada a escasos metros de Passeig de Gràcia, La Pedrera y la Avinguda Diagonal, rodeada de servicios, comercios y excelentes conexiones de transporte público.
Certificado energético
Resumen
- Tipo de propiedadPiso
- Tipo de transacciónEn venta
- Superficie210㎡
- Año de construcción1900
- Dormitorios3
- Baños4
- Planta7
- Número de referenciaAV265



































































